Sesja nr XXVIII

UCHWAŁA NR XXVIII/268/08 RADY MIEJSKIEJ W GRYFINIE z dnia 17 lipca 2008 r. w sprawie nadania nazwy urzędowej ulicy, położonej w obrębie ewidencyjnym nr 2 miasta Gryfino.

UCHWAŁA NR XXVIII/268/08
RADY MIEJSKIEJ W GRYFINIE
z dnia 17 lipca 2008 r.


w sprawie nadania nazwy urzędowej ulicy, położonej w obrębie ewidencyjnym  nr 2 miasta Gryfino

Na podstawie art.18 ust.2 pkt 13 ustawy z dnia 8 marca 1990r.o samorządzie gminnym (Dz.U.z 2001r. Nr 142, poz.1591; z 2002r. Nr 23, poz.220, Nr 62, poz.558, Nr 113, poz.984, Nr 153, poz.1271, Nr 214, poz.1806; z 2003r. Nr 80, poz.717,  Nr 162, poz.1568; z 2004r. Nr 102, poz. 1055, Nr 116, poz.1203, Nr 214, poz.1806;  z 2005 r. Nr 172, poz. 1441, Nr 175, poz. 1457; z 2006 r. Nr 17, poz. 128, Nr 181, poz. 1337; z 2007 r. Nr 48, poz. 327, Nr 138, poz. 974, Nr 173, poz. 1218) uchwala się, co następuje:

§ 1.

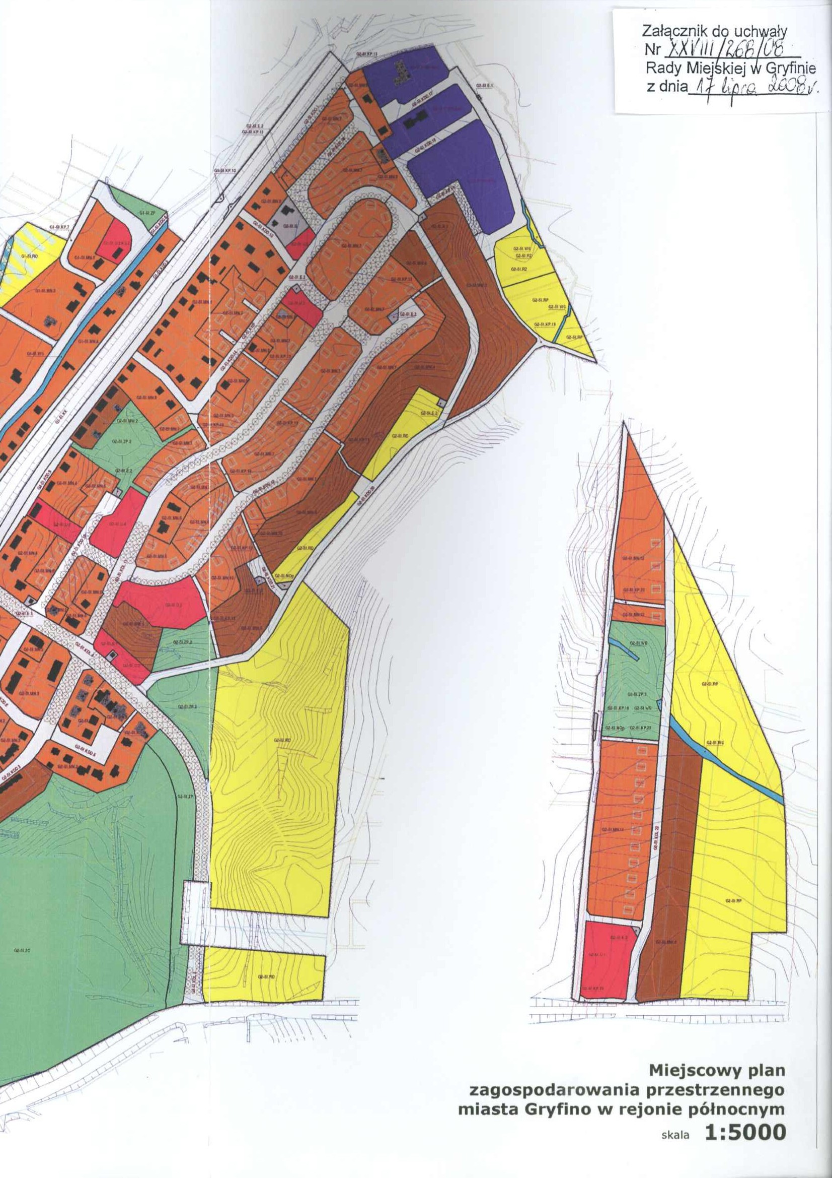
  1. Nadaje się nowoprojektowanej ulicy, położonej w obrębie ewidencyjnym nr 2 miasta Gryfino, oznaczonej w miejscowym planie zagospodarowania przestrzennego symbolami G2-51.KDD.20 oraz G2-51.KDD.21, rozpoczynającej się od ulicy Hugo Kołłątaja, biegnącej w kierunku północnym i łączącej się z ulicą Mazowiecką, nazwę urzędową - ul. „Opolska”.
  2. Przebieg i położenie nowoprojektowanej ulicy szczegółowo określa załącznik graficzny.

§ 2. Wykonanie uchwały powierza się Burmistrzowi Miasta i Gminy Gryfino.

§ 3. Uchwała wchodzi w życie z dniem podjęcia.

 

PRZEWODNICZĄCY RADY

Mieczysław Sawaryn

 

Uzasadnienie

Zgodnie z ustaleniami miejscowego planu zagospodarowania przestrzennego obowiązującego dla tego terenu, obsługa komunikacyjna działek przeznaczonych pod zabudowę mieszkaniową wielorodzinną obowiązuje z dróg oznaczonych symbolami G2-51.KDD.20 – droga publiczna w klasie drogi dojazdowej i G2-51.KDD.21 - droga publiczna w klasie drogi dojazdowej z placem manewrowym.
Właścicielem terenu projektowanej drogi jest Gmina Gryfino i składa się ona  z działek nr 388, 354/4, 387/6, 382, 387/1 – stanowiących drogi oraz przebiega przez działki nr 245, 244, 243, 242, 226 i 225, z których zostanie wydzielona w trakcie podziału geodezyjnego terenu na poszczególne funkcje.
Obecnie Gryfińskie Towarzystwo Budownictwa Społecznego przystępuje do realizacji zabudowy wielorodzinnej z wjazdem z przedmiotowej drogi. Do uzyskania wymaganych do budowy pozwoleń, konieczne jest ustalenie numerów porządkowych nieruchomości co wiąże się z koniecznością nadania nazwy ulicy.
Ponieważ w 2000 r. nadano ulicom powstałym na tym terenie nazwy pochodzące od regionów Polski takie jak ul. Mazowiecka, Podlaska, Śląska, Mazurska i Kujawska, zasadne jest nadanie podobnej nazwy.
Proponuję, nadać nowej ulicy nazwę „ul. Opolska”, gdyż opolskie stanowi jeden z regionów i jest nazwą krótką.

Sporządziła:
J. Woldańska